Progetti
Architettura
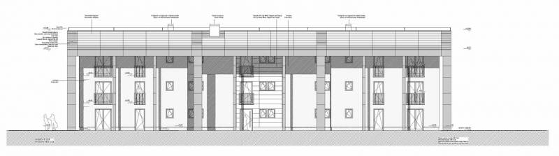
Portico avvolgente
Zona "Vill, Neuland 1 und 3" lotto G1
Anno: 2010-2014
Committente: Istituto per l'Edilizia Sociale della Provincia di Bolzano IPES
Realizzato
Concetto architettonico
Il nuovo edificio, in qualitá CasaClima B dall´elevato standard, è disposto parallelamente alla strada statale, sul lato nord del lotto edificabile creando con la sua lunga sagoma una barriera antirumore e sfruttando al meglio l´esposizione solare. In tal modo si crea un ambito esterno soleggiato e protetto dalla strada e inoltre gli appartamenti hanno zona giorno con terrazza o giardino esposto a sud-ovest.
L´ingresso principale avviene da nord-ovest attraversando il giardino del cortile.
L´edificio è caratterizzato da un tetto generoso che sorretto da pilastrini crea una sorta di grande guschio protettivo avvolgente non solo per terrazze e balconi.
Tetto e colonne sono un tutt´uno anche grazie al rivestimento in laminato che li riveste.
Gli elementi verticali divengono anche punto di aggancio dei balconi così da limitare al minimo i ponti termici.

